Description
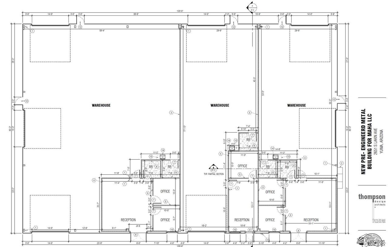
LOCATION, LOCATION, LOCATION! .98 acre lot with 9,600 SF Metal Building on site ready to be put together. Currently desigend for 3suits. Engineering by Thompson Design Architects. This listing includes the land, building, and plans. Plans are approved by the city andpermits are ready to be issued. Located in Gateway Plaza Industrial Park off of 3E between 32nd St and 24th St. Maximum exposureand Central location make this project ideal! High traffic count, close to Freeway, shopping, schools, airport and MCAS. Total corner lotsquare footage is 42,550 SF. Opportunity is waiting.
-
0BEDS
-
N/AACRES
-
0BATHS
-
01/2 BATHS
School Ratings & Info
Description
LOCATION, LOCATION, LOCATION! .98 acre lot with 9,600 SF Metal Building on site ready to be put together. Currently desigend for 3suits. Engineering by Thompson Design Architects. This listing includes the land, building, and plans. Plans are approved by the city andpermits are ready to be issued. Located in Gateway Plaza Industrial Park off of 3E between 32nd St and 24th St. Maximum exposureand Central location make this project ideal! High traffic count, close to Freeway, shopping, schools, airport and MCAS. Total corner lotsquare footage is 42,550 SF. Opportunity is waiting.
© 2026 Yuma Association of Realtors® MLS, Inc. All rights reserved. IDX information is provided exclusively for consumers' personal, non-commercial use and may not be used for any purpose other than to identify prospective properties consumers may be interested in purchasing. Information is deemed reliable but is not guaranteed accurate by the MLS or Ashley Layton | Keller Williams Realty Yuma. Data last updated: 2026-04-19T16:02:37.947.
